5 locali in vendita

Roma, Via annone - Trieste Nemorense Villa Ada
€ 765.000
5 locali 5 locali
143 Mq 143 Mq
2 bagni 2 bagni

5 locali in vendita

Roma, Via annone - Trieste Nemorense Villa Ada

Descrizione annuncio

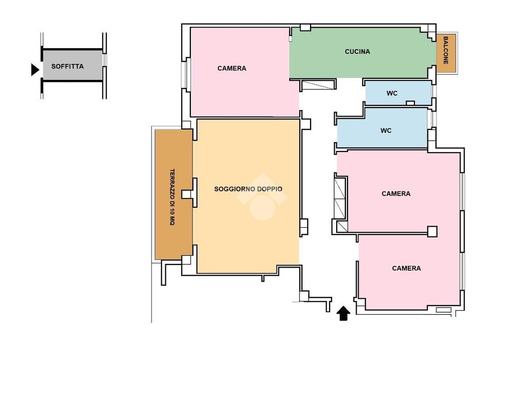
VIA ANNONE: In prossimità di Piazza Istria, cuore residenziale del quartiere Trieste, che unisce eleganza architettonica, servizi di qualità e ottimi collegamenti, proponiamo la vendita di un appartamento di 143 mq, con spazi esterni, posto al secondo piano di un armonioso stabile in cortina.

Presenta una distribuzione interna che include un ampio ingresso, una zona living, doppia, ben proporzionata e che si apre su un terrazzo di 10 mq antistante, perfetto per vivere l'esterno in continuità con l'interno e luogo ideale per momenti di relax o convivialità.

La cucina, pratica e razionale, è servita da un balcone dedicato, funzionale e ben zona notte è organizzata in tre camere matrimoniali spaziose, confortevoli e accoglienti.

Completano la proprietà due bagni, entrambi con finestra e posizionati nella parte centrale della le caratteristiche peculiari dell'immobile spiccano la duplice esposizione, gli affacci riservati e la facilità di personalizzazione degli spazi soffitta posta al sesto piano si traduce in un valido spazio di deposito, asciutto e dotato di finestra.

Un raro valore aggiunto è la possibilità di acquistare separatamente un box auto di 26 mq, di facile accesso e situato di fronte all'appartamento.

Ogni agenzia ha il proprio titolare ed è autonoma. Le presenti informazioni, compresa la planimetria, sono fornite a scopo illustrativo e non costituiscono elemento contrattuale.

Mostra tutto

Nelle vicinanze

Trasporto pubblico Trasporto pubblico
Sant'Agnese/Annibaliano
Sant'Agnese/Annibaliano
250 m
Libia
Libia
1,0 Km
stazione di Roma Nomentana
stazione di Roma Nomentana
1,3 Km
Val d’Ala
Val d’Ala
2,0 Km
Valle Giulia
Valle Giulia
2,8 Km
Ricariche auto elettriche Ricariche auto elettriche
Roma Istria | EnelX
80 m
Roma Verbano | EnelX
530 m
LUISS University | EnelX
620 m
Roma Vescovio | EnelX
1,0 Km
Roma Via Fezzan | EnelX
1,1 Km
Scuole Scuole
LUISS
270 m
I.C. Volsinio
290 m
Scuola Media Giuseppe Sinopoli (ex Massimo D'Azeglio)
370 m
Istituto San Leone Magno
390 m
Istituto privato San Leone Magno
450 m
Farmacia Farmacia
Farmacia
300 m
Farmacia Dottor Mancini
840 m
Farmacia Torlonia
870 m
Ronconi Paolo
1,0 Km
Farmacia Alessandra Mazzantini
1,1 Km
Ospedali Ospedali
Centro Medicina Nucleare Italiano Villa Bianca
170 m
Casa di Cura "Assunzione di Maria Santissima"
610 m
Clinica Sanatrix
720 m
Clinica Privata
1,0 Km
Ospedale S.Anna - A.S.L. Roma A
1,2 Km
Supermercati Supermercati
Conad
160 m
Supermercati
200 m
Tigre
390 m
Punto Sma
620 m
Carrefour
790 m
Negozi Negozi
Super Casalinghi
230 m
Pizza al Suolo
350 m
Lady Chic
410 m
Negozi
490 m
Paris 2
540 m
Bar Bar
Bar
100 m
Crash Vibes & Wines
150 m
The Cotton Club
180 m
Caffe' nemorense
220 m
Ivy Food Music & Drink
230 m
Ristoranti Ristoranti
Pizzeria San Marino
60 m
T-Burger Station
120 m
Numbs Le Bistro
140 m
Nonna Lia Panzerotti
150 m
Osteria dell'Ingegno
160 m
Mostra tutto

Caratteristiche

Rif.:
61120986
Piano:
2 di 5 con ascensore (Piano medio)
Balconi:
1
Terrazzi:
1
Camere da letto:
3
Arredamento:
Assente
Mostra tutto
Prezzo Prezzo
€ 765.000
Rata mutuo Rata mutuo
€ 3.605 / mese
Spese annue Spese annue
€ 0
Proponi il tuo prezzoProponi il tuo prezzo

Classe Energetica

G
G
G
G
G
G
G
G
G
EP globale non rinnovabile:
175.00 kW h/m² anno
Anno di costruzione:
1940
Riscaldamento:
Autonomo
Tipo impianto:
A radiatori
Tipo alimentazione:
Metano

Ti interessa visionare l'immobile?

Fissa un appuntamento  Fissa un appuntamento

Richiedi informazioni

Clicca su Leggi per aprire l'informativa
* Questi campi sono obbligatori

Calcola il tuo mutuo

Semplice e senza impegno
Anticipo

( % )
Mutuo

( % )

pochi semplici passi

inserisci i tuoi dati
Questionario completato
Grazie per aver richiesto un appuntamento senza impegno con un nostro Consulente del Credito e Assicurativo.

Hai inserito correttamente tutti i dati necessari e a breve riceverai una e-mail con un link da convalidare per inviare i tuoi dati.
Affiliato
Studio Villa Ada Srl
Via Chiana, 47/49 00199 Roma (RM)

Il nostro staff


  • Gabriele Flavio Di Camillo
    Affiliato
Via Chiana, 47/49 00199 Roma (RM)
Zona: Trieste-Nemorense-Villa Ada
Mostra su mappa
Orari: dal lunedì al venerdì: 09:00-13:00/ 14:00-19:00 sabato 09:00-13:00/ 14:00-17.30
Affiliato
Studio Villa Ada Srl
Via Chiana, 47/49 00199 Roma (RM)

2026 Tecnocasa Franchising S.p.A. - P. IVA 08365160152 - Via Monte Bianco 60/A 20089 Rozzano (MI). Ogni agenzia ha un proprio titolare ed è autonoma. Privacy policy | Policy utilizzo | Cookie policy